Eigenes Bauträgerprojekt
3-4 Zimmer Neubau-Gartenwohnung in Solln mit Hobbyraum auf ca. 88m²
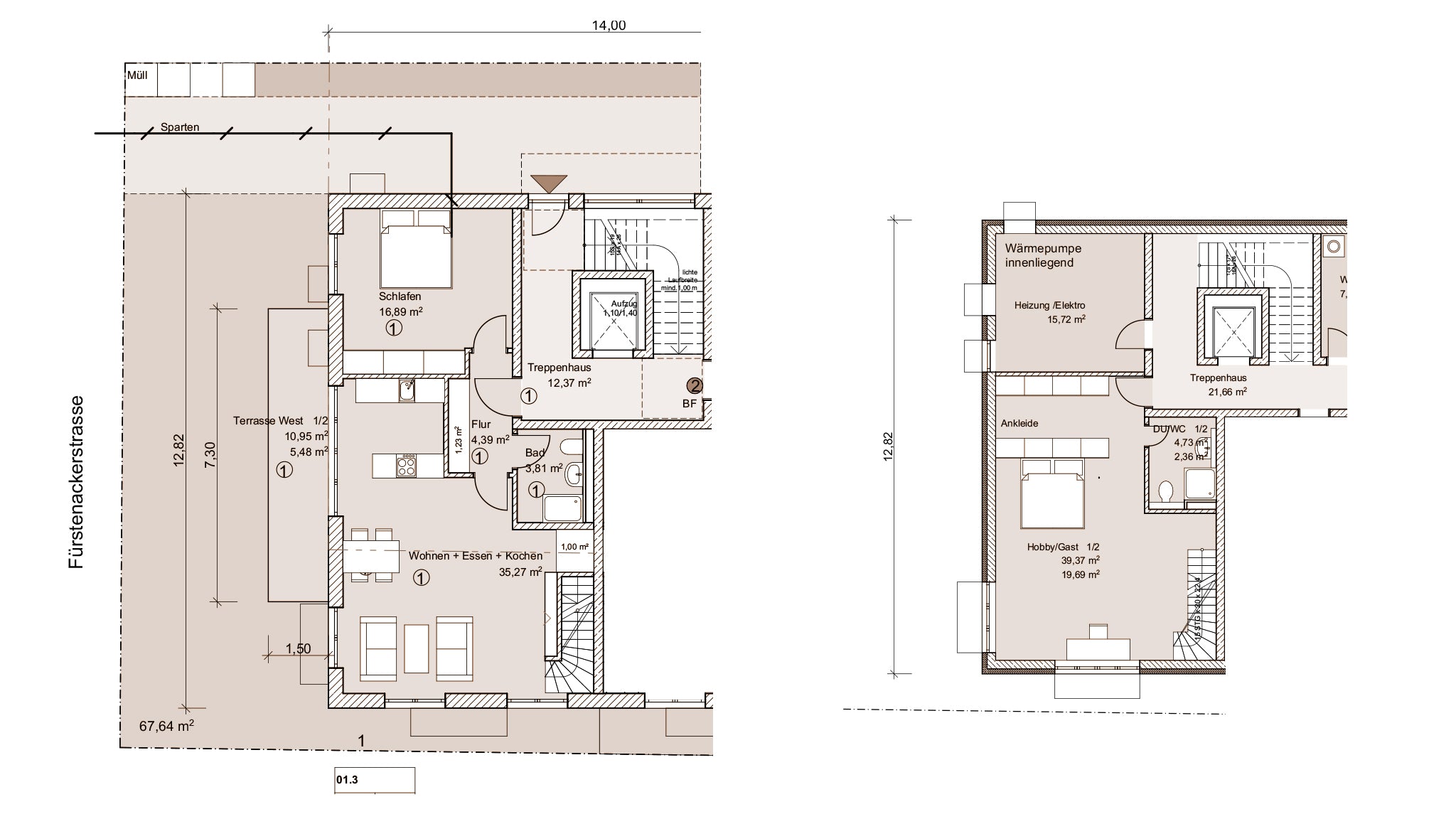
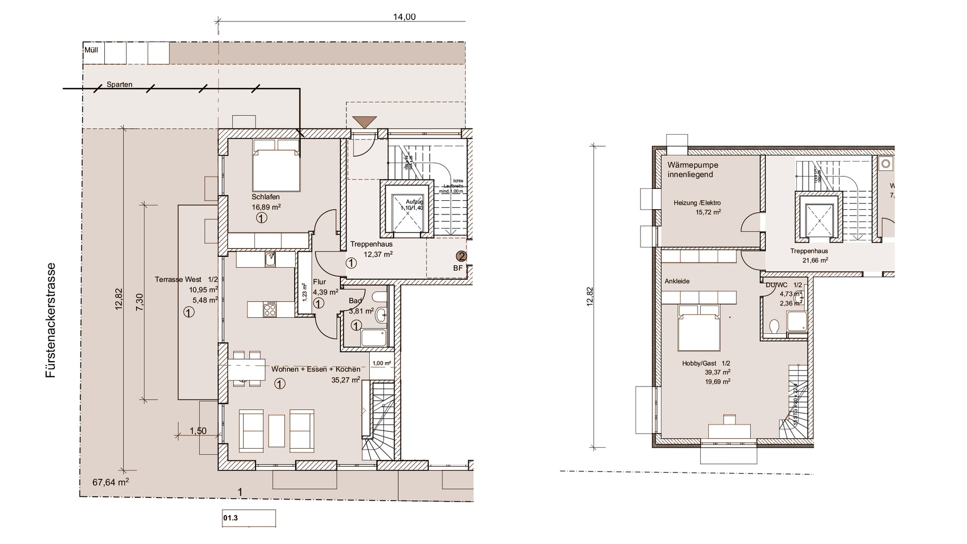
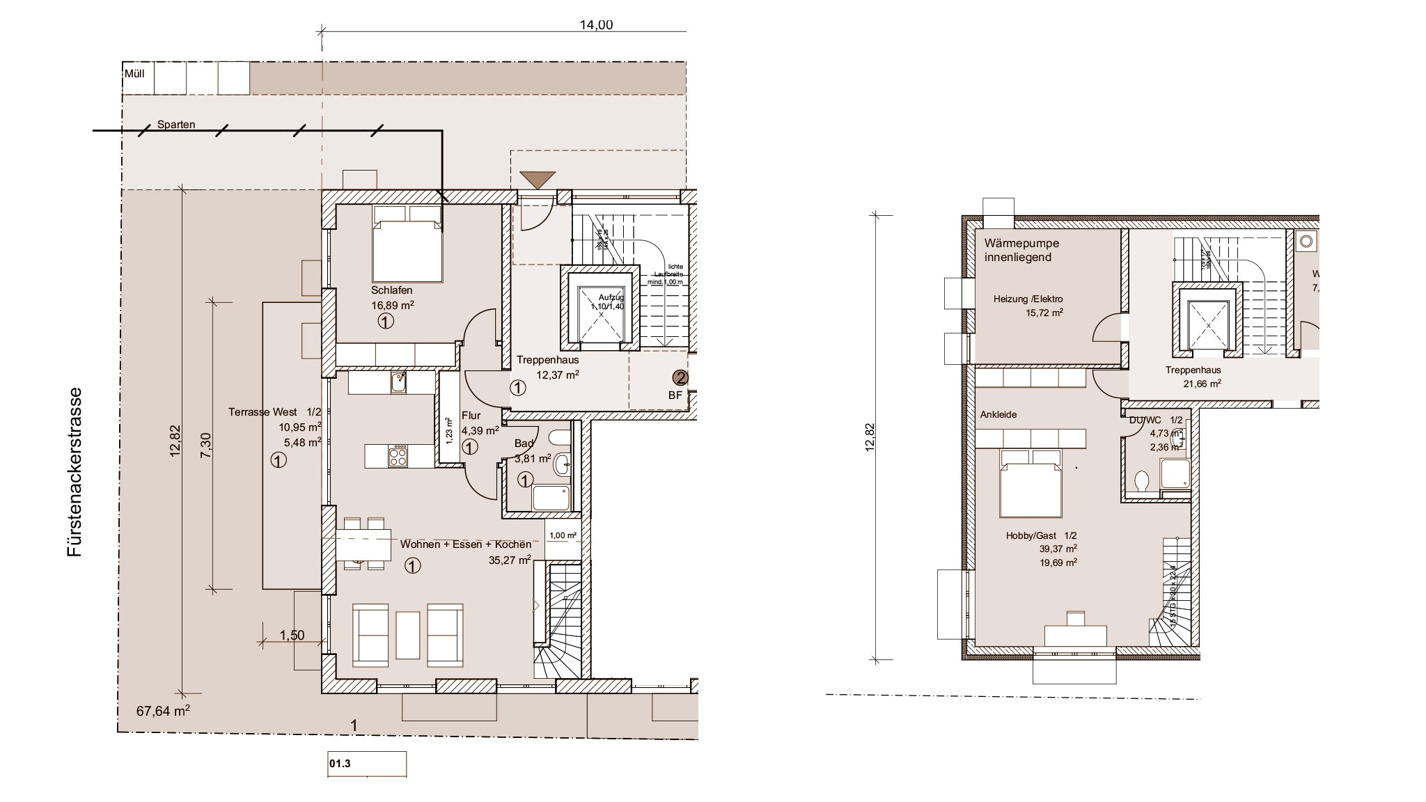
EG & UG
Privater Garten
Großer Hobbyraum
Barrierefrei
In der Fürstenackerstraße 3 in Solln entsteht unser neues Mehrfamilienhaus mit nur sechs exklusiven Wohnungen. Teil davon ist diese Erdgeschosswohnung - eine von drei möglichen Grundriss- und Größenvarianten pro Erdgeschosshälfte. Die hier gezeigte Option: 3-4 Zimmer-Gartenwohnung mit ca. 88 m², zwei Bädern, Hobbyraum, Kellerabteil und eigenem privaten Garten. Der Grundriss bietet flexible Strukturen: Offener Wohn-/Essbereich mit Zugang zur Terrasse sowie zum Schlafzimmer, pro Etage ein vollwertiges Bad und ein großer Hobbyraum im Untergeschoss, der auch teilbar ist. Ideal als Büro, Studio oder Rückzugsort. Die Wohnung ist barrierefrei erreichbar, der Aufzug führt direkt von der Tiefgarage ins Erdgeschoss. Da Hobbyräume und Terrassen nur zur Hälfte anrechenbar sind, bezahlen Sie lediglich für ca. 88m², wohnen aber auf fast 116m².
- TÜV-geprüfter Neubau
- Fertigstellung in 2027
- Sonderwünsche möglich
Ausstattung & Highlights
Hochwertige Parkettböden (wählbar), bodentiefe Fenster, elektrische Rollläden, zwei vollwertige Bäder jeweils mit WC. Die Wohnung ist barrierefrei erreichbar und verfügt über Fußbodenheizung in allen Räumen. Moderne Haustechnik, Video-Gegensprechanlage und Dreifachverglasung sorgen für Komfort und Energieeffizienz.
Zzgl. Duplex-Parkplatz: €35.000
Kurz: Neubau-Standard, der sich nicht nach Standard anfühlt.
Bauprojekt & Energie
Das Mehrfamilienhaus entsteht Stein auf Stein in der Fürstenackerstraße. Fertigstellung 2027, Erstbezug garantiert. Beheizt wird das Gebäude über eine moderne Luft-Wärmepumpe, kombiniert mit Fußbodenheizung. Dreifachverglasung, gedämmte Gebäudehülle, Aufzug von der Tiefgarage ins Erdgeschoss.
Nachhaltig im Betrieb, solide gebaut, technisch auf aktuellem Stand.
Lage & Umgebung
Solln zählt zu den gefragtesten Wohnlagen im Münchner Süden: ruhig, grün, familienfreundlich – mit schneller Anbindung an S7 und U3. Einkaufsmöglichkeiten, Cafés und Schulen liegen nah, die Isar ist nicht weit.
Wer München mag, fühlt sich hier sofort zuhause.
Infos für Kaufinteressenten
Die Wohnung wird schlüsselfertig übergeben. Sonderwünsche sind -abhängig vom Baufortschritt- möglich. Das Projekt wird vom TÜV Süd baubegleitend geprüft.
Gerne sprechen wir über individuelle Anpassungen, Finanzierungsideen oder Ablauffragen. Klare Prozesse, kurze Wege, direkter Austausch.



